SPATIU COMERCIAL 91 MP LA CHEIE ZONA STRAZII GALAXIEI

230.000€
ID:JJ284  Baciu,  

Descriere spatiu comercial

Spațiu comercial multifuncțional de vânzare – Baciu, reper Strada Galaxiei

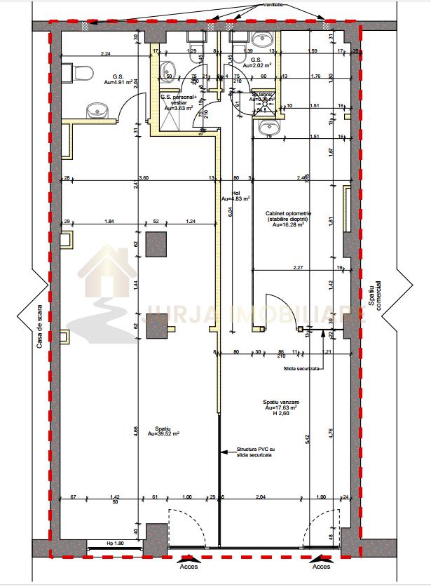
Vă propunem spre vânzare un spațiu generos și versatil, situat în Baciu, în apropierea străzii Galaxiei. Deși în acte figurează ca demisol, poziționarea este echivalentă cu nivelul parterului, oferind vizibilitate și acces facil.

Detalii proprietate:



Suprafață utilă: 91 mp


Suprafață construită: 101 mp


Compartimentare: 3 camere, 3 băi, vestiar


An construcție: 2019


Renovare completă: 2025


Orientare: sudică



Dotări și finisaje:



Încălzire prin panouri electrice moderne


Podele: parchet premium de trafic intens + gresie


Pereți: lavabil


Ușă de intrare din termopan


Bloc izolat termic


Sistem de alarmă și supraveghere video


Țeavă de gaz la intrare (necesită proiect dacă se dorește racordare la gaz)



Avantaje:



Fără TVA – se vinde direct de la persoană fizică


Se acceptă plata prin credit bancar


Spațiu luminos și funcțional, adaptabil pentru mai multe destinații



Destinații posibile:



Cabinet stomatologic sau alte cabinete medicale


Birouri pentru firme


Magazin de proximitate


Firma de catering sau alte activități comerciale



 

Un spațiu modern, într-o zonă accesibilă, ideal pentru afaceri sau investiție.


Pentru  vizionari, contacteaza-ne.

Tel:  0746.403.492

E-mail: jurjaimobiliare@gmail.com

Multumim! 

Echipa JURJA IMOBILIARE !

ID intern: JJ284

Caracteristici spatiu comercial

  • Numar Camere: 3
  • Zona:
  • Suprafata utila: 91 mp
  • Reper:
  • Tip Spatiu: Spatii comerciale
  • Structura:

Caracteristici generale spatiu comercial

  •  Acces internet: Fibra optica, Wireless,
  •  Bucatarie: Nu,
  •  Calorifere: Nu,
  •  Contorizare: Apometre, Contor electric,
  •  Dispunere Spatii: Intrare separata,
  •  Dotari Birouri: Sistem alarma, Spoturi, Fatada de sticla,
  •  Ferestre: PVC,
  •  Incalzire Casa: Altele,
  •  Lift: Lift,
  •  Mobilat Spatii: Nemobilat,
  •  Pereti: Lavabil,
  •  Podele: Parchet, Gresie,
  •  Stadiu Finisare: Finalizat,
  •  Strazi: Asfaltate, Iluminat stradal, Mijloace de transport in comun,
  •  Usa intrare: PVC,
  •  Usi: Usi celulare, PVC,
  •  Utilat Spatii: Neutilat,
  •  Utilitati: Canalizare, Apa, Curent, Internet,
  •  Vecinatati Spatii: Autobuz, Zona comerciala, Banca, Supermarket,
  •  Vedere: Fata,

Harta

Ne puteti contacta pe
Tel: 0746403492 whatsapp